VILLA SELVA
Villa spacieuse avec vue mer, sur grand terrain, avec piscine et court de tennis
Description du bien
Cette impressionnante villa, construite au milieu des années 80 sur un terrain de près de 3 400 m², offre des vues panoramiques sur la mer et bénéficie d'une orientation sud, ce qui garantit une excellente luminosité tout au long de la journée.
En entrant au rez-de-chaussée, on trouve un salon-salle à manger spacieux et lumineux, qui a un accès direct à une terrasse avec des vues spectaculaires sur la mer, créant un environnement parfait pour se détendre et profiter de la tranquillité des environs.
La cuisine entièrement équipée est séparée et a un accès direct à la terrasse ouest, au porche et au jardin, ce qui facilite la connexion avec les espaces extérieurs. Une buanderie de bonne taille complète cet espace fonctionnel.
Au même étage, on trouve deux chambres à coucher avec vue sur la mer et accès direct à la terrasse. La première est une suite avec une salle de bain complète et des armoires encastrées, tandis que la seconde est une chambre double avec une salle de bain en face.
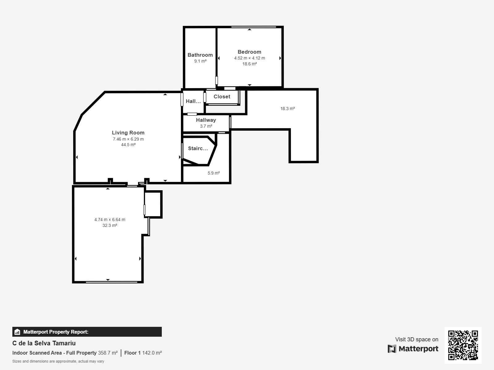
Au premier étage, il y a trois chambres à coucher. La première est une chambre simple, tandis que la deuxième est une chambre double ; toutes deux partagent une salle de bains avec douche. La troisième chambre est la suite principale de la maison. Elle dispose d'armoires encastrées, d'une salle de bains complète et d'un accès à une terrasse privée offrant une vue imprenable sur la mer.
Le rez-de-chaussée abrite une chambre avec salle de bains complète. Il y a également une grande salle de divertissement équipée d'un bar, qui pourrait être transformée en salle de télévision, en salle de sport ou en salle de jeux. En outre, il y a un grand garage avec de l'espace pour deux voitures et des motos.
À l'extérieur, la propriété dispose d'une grande piscine entourée d'une terrasse d'où l'on peut profiter d'une vue spectaculaire sur la mer. À l'arrière de la maison, donnant sur la forêt, se trouve un porche fermé qui abrite un espace barbecue, idéal pour profiter des repas en plein air, en particulier grâce à sa proximité avec la cuisine.
L'un des grands avantages de cette propriété est que, quelle que soit la saison ou le temps, vous pourrez profiter de l'extérieur grâce à ses multiples terrasses et espaces extérieurs, tous avec une vue imprenable.
De plus, le jardin dispose d'un grand court de tennis, parfait pour les amateurs de sport.
Cette villa est idéale à la fois comme maison de vacances et comme investissement. Sa situation privilégiée et sa conception en font une excellente option pour la location de vacances, offrant un bon rendement au propriétaire.
Emplacement
Type de propriété
Chambres
Salles de bains
Surface du terrain
Caractéristiques de la propriété
Surface
Transaction
Type de construction
État
Toilettes
Buanderie
Parking
Garage
Cour
Débarras
Balcon
Terrasse
Jardin
Chauffage
Piscine
Séjours
Salles à manger
Nombre d'étages
Atelier
Grès
Marbre
Vue sur la mer
Orientation
Double vitrage
Système de sécurité
Alarme
Cuisine équipée
Wi-Fi
Certification énergétique
E - 181 kWh/m2
E - 47 kg CO2/m2





























































