SANT GAIETÀ
Ubicació excepcional, vistes panoràmiques, pàrquing i llicència turística al cor de Begur.
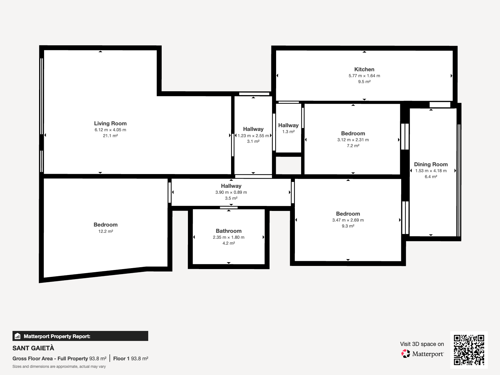
Descripció de l'Immoble
A només 300 metres de l’emblemàtica església de Begur i a un pas de botigues, restaurants i tota la vida del poble, aquest apartament gaudeix d’una ubicació realment privilegiada — cèntrica però discretament situada en un carrer residencial tranquil.
L’habitatge és excepcionalment lluminós, amb una gran entrada de llum natural a totes les estances. El saló–menjador, emmarcat per amplis finestrals, ofereix unes magnífiques vistes panoràmiques als Pirineus, creant un ambient càlid i acollidor al llarg de tot el dia.
L’apartament està llest per entrar-hi a viure i representa també una excel·lent oportunitat d’inversió. Gràcies a la seva Llicència Turística (HUTG), es pot començar a llogar immediatament, assegurant un alt potencial de rendibilitat.
A l’interior, la propietat disposa de:
-
3 dormitoris lluminosos
-
1 bany complet
-
Saló–menjador ple de llum amb vistes espectaculars a la muntanya
-
Cuina totalment equipada amb accés a un encantador espai tipus porxo / veranda tancada
-
Pàrquing privat
-
Llicència Turística vigent (HUTG)
Una oportunitat única per adquirir un apartament lluminós i confortable en una de les zones més desitjades de Begur — ideal com a segona residència, habitatge habitual o propietat d’alta rendibilitat per a lloguer turístic.
Ubicació
Tipus d'immoble
Dormitoris
Banys
Característiques de l'immoble
Superfície
Operació
Tipus d'obra
Estat
Moblat
Pàrquing
Balcó
Calefació
Sales
Gres
Vista àmplia
Llicència turística
Eficiència energètica
En tràmit




































