SANT GAIETÀ
Ubicación excepcional, vistas panorámicas, parking y licencia turística en el corazón de Begur.
Descripción del inmueble
A solo 300 metros de la icónica iglesia de Begur y a un paso de tiendas, restaurantes y toda la vida del pueblo, este apartamento disfruta de una de las ubicaciones más privilegiadas de la zona: central pero discretamente situado en una tranquila calle residencial .
La vivienda es excepcionalmente luminosa, con abundante luz natural en todas las estancias. El salón–comedor, enmarcado por amplios ventanales, ofrece hermosas vistas panorámicas a los Pirineos, creando un ambiente cálido y acogedor durante todo el día.
El apartamento está listo para entrar a vivir y representa una excelente oportunidad de inversión. Gracias a su Licencia Turística (HUTG), puede comenzar a explotarse de inmediato, asegurando un gran potencial de rentabilidad.
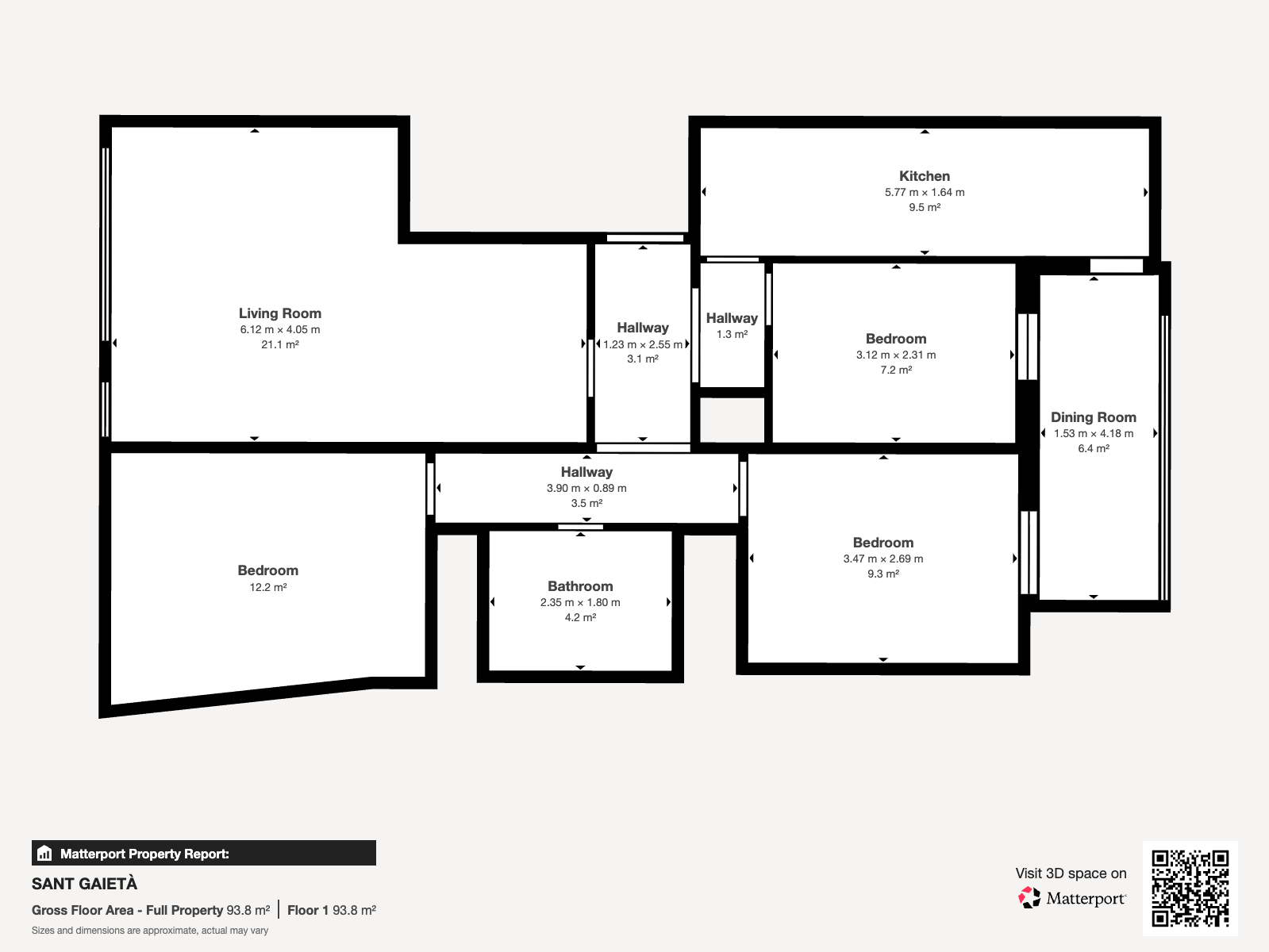
En el interior, la propiedad ofrece:
-
3 dormitorios luminosos
-
1 baño completo
-
Salón–comedor con impresionantes vistas a la montaña
-
Cocina totalmente equipada con acceso a un encantador espacio tipo porche/veranda
-
Plaza de aparcamiento privada
-
Licencia Turística vigente (HUTG)
Una oportunidad única para adquirir un apartamento luminoso y confortable en una de las zonas más deseadas de Begur, ideal como segunda residencia, vivienda habitual o propiedad de alta rentabilidad para alquiler vacacional.
Ubicación
Tipo de inmueble
Dormitorios
Baños
Características del inmueble
Superficie
Operación
Tipo de obra
Estado
Amueblado
Parking
Balcón
Calefacción
Salas
Gres
Vista despejada
Licencia turística
Eficiencia energética
En trámite




































