CASA ADELFA
House with three independent apartments, panoramic sea and mountain views
Property description
Located in the quiet and sought-after residential area of Mas Tomasí, in Els Masos de Pals, this impressive single-family home offers a unique experience with 180° panoramic views of the valley and the sea. Just 3.5 km from the beach and the charming medieval old town of Pals, its location perfectly combines privacy, nature, and proximity to all amenities.
Facing south, the property is bathed in sunlight throughout the day, creating a warm, bright, and welcoming atmosphere. The home is spread over a 1,161 m² plot connected to two streets and has a constructed area of 377 m², which includes the main house and two fully independent apartments: an ideal option for accommodating guests or generating additional income through vacation or long-term rentals.
The main house has recently been renovated in key areas such as the kitchen, bathrooms, floors, and exterior walls, offering a modern and comfortable style. It consists of a spacious and welcoming living-dining room with a fireplace, a fully equipped open-plan kitchen, three double bedrooms, and a bathroom with a separate shower. Outside, the property features a private pool and a functional storage area, as well as a convenient parking area with access from the upper street.
The two independent apartments add great versatility to the property:
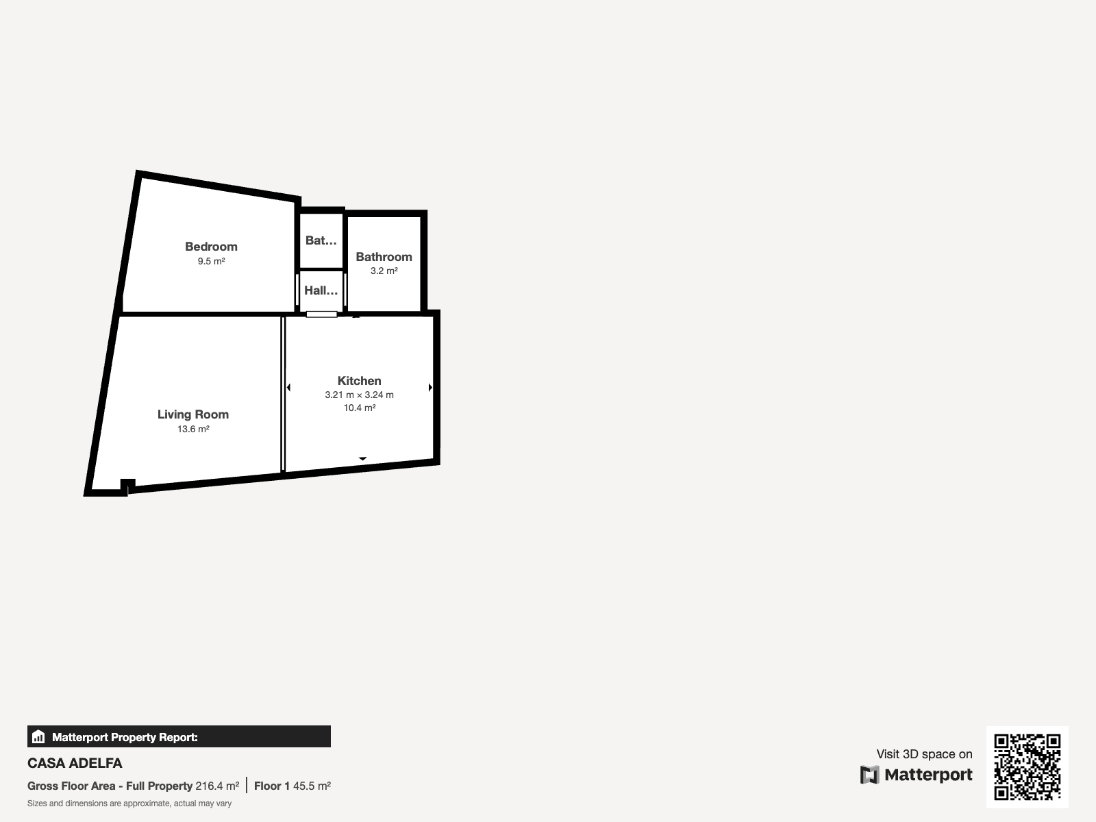
The middle apartment offers a welcoming living-dining room, an open-plan kitchen, two double bedrooms (one with direct access to a south-facing terrace), and a full bathroom with a shower.
The bottom apartment features a bright living room with access to a terrace and open views, an integrated kitchen, a double bedroom, and a bathroom with a shower.
In addition, the property boasts a large garage with capacity for several vehicles, easily accessed via a ramp from the lower street, providing functionality and security.
An exceptional opportunity to live in a privileged setting, with multiple uses and excellent potential profitability. Ideal as a primary residence, second home, or investment on the Costa Brava.
Location
Type of property
Rooms
Bathrooms
Plot area
Property Features
Surface area
Transaction
Work category
Condition
Parking
Garage
Utility room/area
Terrace
Garden
Solar panels
Heating
Swimming pool
Living rooms
Number of floors
Gres
Sea view
Clear view
Orientation
Double glazing
Security system
Equipped kitchen
Internet
WiFi
Energy efficiency
E - 292 kWh/m2
E - 49 kg CO2/m2










































































