CASA ADELFA
Maison avec trois appartements indépendants, vue panoramique sur la mer et les montagnes
Description du bien
Située dans le quartier résidentiel calme et recherché de Mas Tomasí, à Els Masos de Pals, cette impressionnante maison individuelle offre une expérience unique avec une vue panoramique à 180º sur la vallée et la mer. A seulement 3,5 km de la plage et de la charmante vieille ville médiévale de Pals, son emplacement allie parfaitement intimité, nature et proximité de toutes les commodités.
Orientée plein sud, la propriété est baignée de soleil tout au long de la journée, créant une atmosphère chaleureuse, lumineuse et accueillante. La maison est répartie sur un terrain de 1 161 m² relié à deux rues et a une superficie construite de 377 m², qui comprend la maison principale et deux appartements entièrement indépendants: une option idéale pour accueillir des invités ou générer des revenus supplémentaires grâce à des locations de vacances ou à long terme.
La maison principale a été récemment rénovée dans des domaines clés tels que la cuisine, les salles de bains, les sols et les enceintes extérieures, offrant un style moderne et confortable. Il se compose d'un spacieux et accueillant salon-salle à manger avec cheminée, d'une cuisine américaine entièrement équipée, de trois chambres doubles et d'une salle de bain avec douche séparée. À l'extérieur, il y a une piscine privée et un espace de rangement fonctionnel, ainsi qu'un parking pratique avec accès depuis la rue supérieure.
Les deux appartements indépendants offrent une grande polyvalence à la propriété :
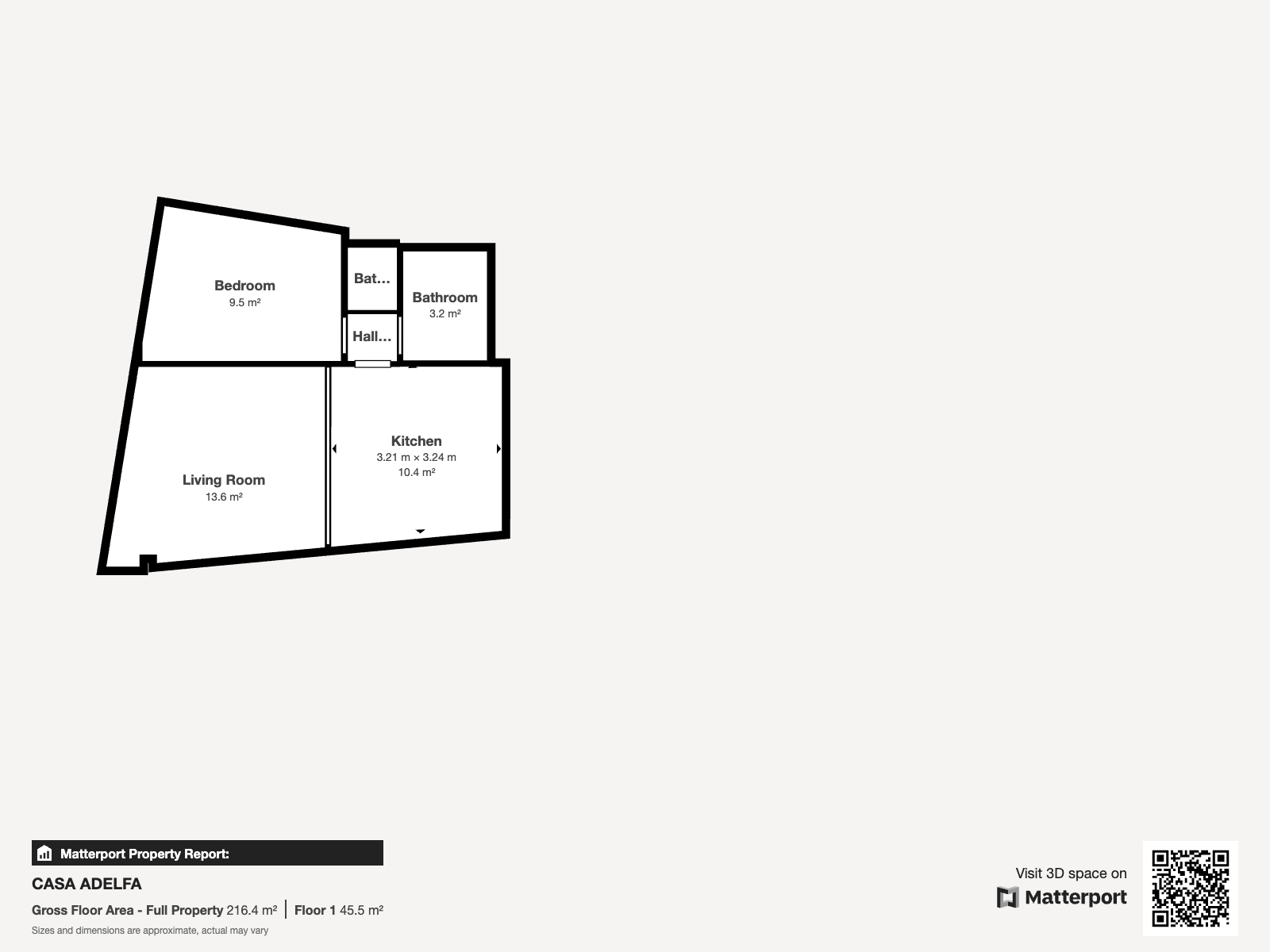
L'appartement du milieu omprend un salon-salle à manger confortable, une cuisine ouverte, deux chambres doubles (une avec accès direct à une terrasse exposée sud) et une salle de bain complète avec douche.
L'appartement du bas a un séjour lumineux avec accès à une terrasse et vue dégagée, une cuisine américaine, une chambre double et une salle de bain avec douche.
De plus, la propriété dispose d'un grand garage pouvant accueillir plusieurs véhicules, facilement accessible via une rampe depuis la rue en contrebas, offrant fonctionnalité et sécurité.
Une opportunité exceptionnelle de vivre dans un cadre privilégié, avec de multiples usages et un excellent potentiel de rentabilité. Idéal comme résidence permanente, résidence secondaire ou investissement sur la Costa Brava.
Emplacement
Type de propriété
Chambres
Salles de bains
Surface du terrain
Caractéristiques de la propriété
Surface
Transaction
Type de construction
État
Parking
Garage
Débarras
Terrasse
Jardin
Panneaux solaires
Chauffage
Piscine
Séjours
Nombre d'étages
Grès
Vue sur la mer
Vue dégagée
Orientation
Double vitrage
Système de sécurité
Cuisine équipée
Internet
Wi-Fi
Certification énergétique
E - 292 kWh/m2
E - 49 kg CO2/m2










































































