CASA ADELFA
Casa con tres viviendas independientes, vistas panorámicas a mar y montaña
Descripción del inmueble
Ubicada en la tranquila y codiciada zona residencial de Mas Tomasí, en Els Masos de Pals, esta impresionante casa unifamiliar ofrece una experiencia única con vistas panorámicas de 180º al valle y al mar. A tan solo 3,5 km de la playa y del encantador casco antiguo medieval de Pals, su ubicación combina a la perfección privacidad, naturaleza y proximidad a todos los servicios.
Con orientación sur, la propiedad se baña de sol durante todo el día, creando un ambiente cálido, luminoso y acogedor. La vivienda se distribuye en una parcela de 1.161 m² que conecta con dos calles, y cuenta con una superficie construida de 377 m², que incluye la casa principal y dos apartamentos totalmente independientes: una opción ideal para alojar invitados o generar ingresos adicionales mediante alquiler vacacional o de larga estancia.
La casa principal ha sido renovada recientemente en aspectos clave como cocina, baños, suelos y cerramientos exteriores, ofreciendo un estilo moderno y confortable. Se compone de un amplio y acogedor salón-comedor con chimenea, cocina abierta totalmente equipada, tres dormitorios dobles y un baño con ducha independiente. En el exterior, destaca la piscina privada y una zona de almacenamiento funcional, así como una cómoda área de aparcamiento con acceso desde la calle superior.
Los dos apartamentos independientes aportan gran versatilidad a la propiedad:
- El primer apartamento ofrece un salón-comedor acogedor, cocina abierta, dos dormitorios dobles (uno con acceso directo a una terraza orientada al sur) y un baño completo con ducha.
-
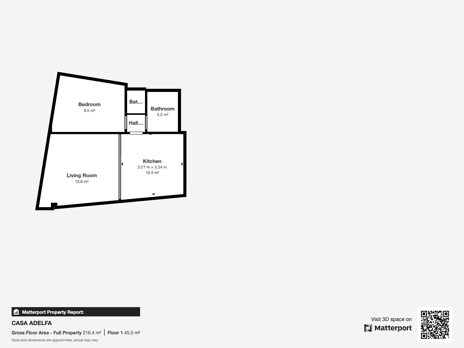
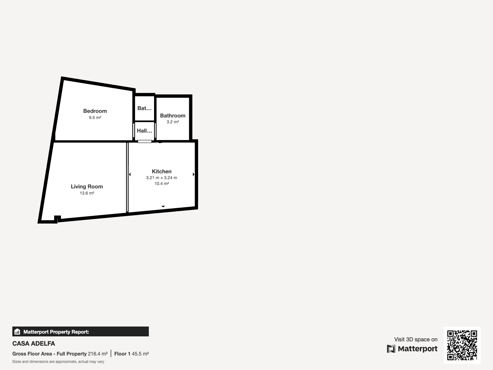
El segundo apartamento dispone de un salón luminoso con salida a terraza y vistas abiertas, cocina integrada, un dormitorio doble y baño con ducha.
Además, la propiedad cuenta con un amplio garaje con capacidad para varios vehículos, al que se accede cómodamente por una rampa desde la calle inferior, aportando funcionalidad y seguridad.
Una oportunidad excepcional para vivir en un entorno privilegiado, con múltiples posibilidades de uso y una excelente rentabilidad potencial. Ideal tanto como residencia habitual, segunda vivienda o inversión en la Costa Brava.
Ubicación
Tipo de inmueble
Dormitorios
Baños
Superficie parcela
Características del inmueble
Superficie
Operación
Tipo de obra
Estado
Parking
Garaje
Trastero
Terraza
Jardín
Paneles solares
Calefacción
Piscina
Salas
Número de plantas
Gres
Vista al mar
Vista despejada
Orientación
Doble acristalamiento
Sistema de seguridad
Cocina equipada
Internet
Wifi
Eficiencia energética
E - 292 kWh/m2
E - 49 kg CO2/m2










































































