QUATRE CASES
Maison de ville avec patio et terrasse, plus appartement potentiel avec terrasse sur le toit
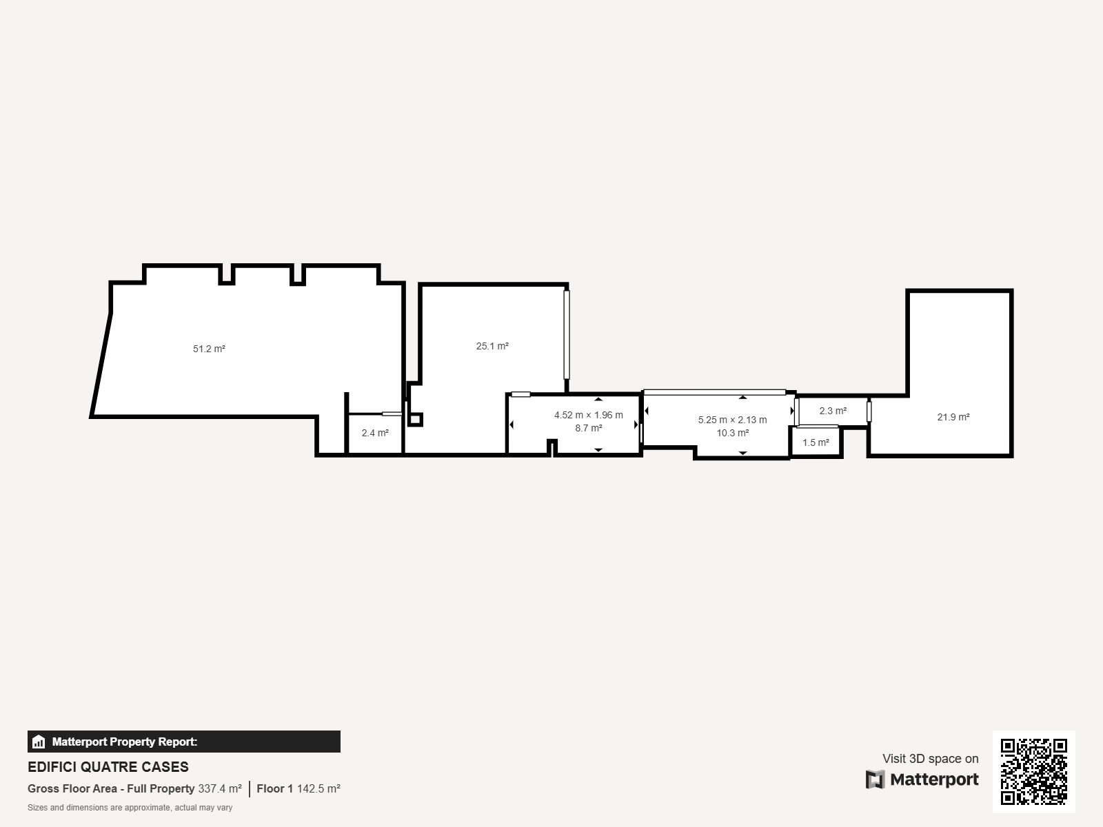
Description du bien
Situé dans une charmante rue piétonne du centre de Palafrugell, à quelques pas de toutes les commodités, commerces, restaurants et attractions, ce bâtiment unique de trois étages avec une terrasse sur le toit est idéal à la fois comme investissement et comme projet résidentiel polyvalent.
- La maison principale est répartie sur deux niveaux, avec un total de 5 chambres (4 doubles et 1 simple), une salle de bain complète avec douche et une autre salle de bain attenante avec baignoire et un accès direct à une terrasse ensoleillée. Au niveau inférieur se trouvent le spacieux salon-salle à manger avec accès au patio, une cuisine fonctionnelle reliée à une buanderie et des toilettes invités. Il dispose également d'une pièce attenante de 22 m², idéale comme studio, bureau, salle de sport ou espace créatif.
- Appartement indépendant au dernier étage, actuellement en construction, permettant au nouveau propriétaire de le concevoir et de le finir entièrement à son goût. Une excellente opportunité de créer une résidence secondaire ou de la louer.
- Grande terrasse ensoleillée sur le toit avec vue panoramique sur le village, l'église et d'autres bâtiments historiques de la vieille ville. Un espace unique pour profiter du soleil et de la tranquillité au cœur de la ville.
La propriété offre un potentiel de rentabilité important grâce à la possibilité de diviser les unités horizontalement et de les vendre ou de les louer séparément. Un investissement polyvalent avec de multiples options de développement, dans l'une des villes les plus dynamiques et charmantes du Baix Empordà.


























