VILLA SELVA
Spacious villa with sea views, on large plot, with swimming pool and tennis court
Property description
This impressive villa, built in the mid 80's on a plot of almost 3,400 m², offers panoramic sea views and enjoys a south orientation, which guarantees excellent luminosity throughout the day.
Entering the main floor, we find a spacious and bright living-dining room, which has direct access to a terrace with spectacular sea views, creating a perfect environment to relax and enjoy the tranquillity of the surroundings.
The fully equipped kitchen is separate and has direct access to the west terrace, the porch and the garden, which facilitates the connection with the exterior spaces. There is also a good sized laundry room, which completes this functional area.
On this same floor, we find two bedrooms with sea views and direct access to the terrace. The first is a suite with a complete bathroom and built-in wardrobes, while the second is a double bedroom with a bathroom opposite.
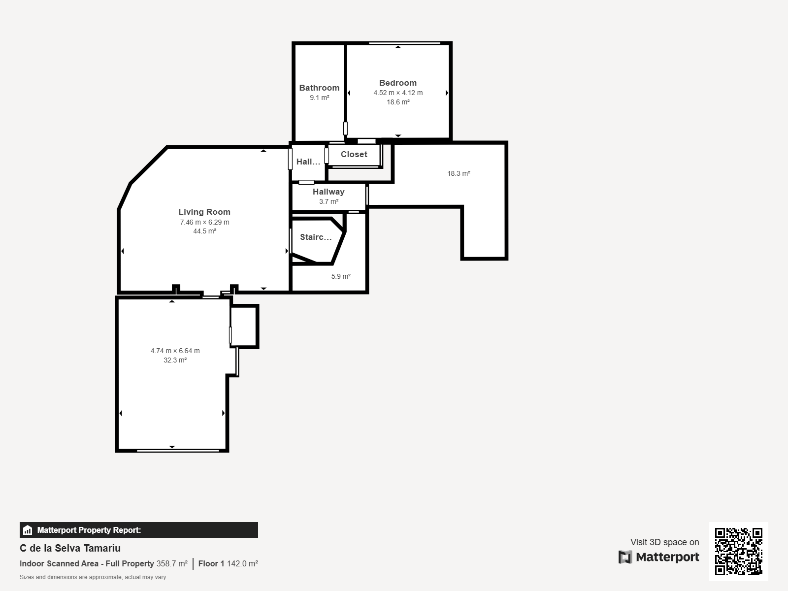
On the first floor, there are three bedrooms. The first is a single bedroom, while the second is a double bedroom; both share a bathroom with shower. The third bedroom is the master suite of the house, which has built-in wardrobes, a complete bathroom and access to a private terrace with unbeatable sea views.
The ground floor has an en-suite bedroom with its own full bathroom. There is also a large entertainment room equipped with a bar, which could be adapted as a TV room, gym or games room. In addition, there is a generous garage with space for two cars and motorbikes.
Outside, the property has a large swimming pool surrounded by a terrace from where spectacular sea views can be enjoyed. To the rear of the house, overlooking the forest, is an enclosed porch that houses a barbecue area, ideal for enjoying al fresco dining, especially thanks to its proximity to the kitchen.
One of the great advantages of this property is that, regardless of the season or the weather, you will be able to enjoy the outdoors thanks to its multiple terraces and outdoor spaces, all with stunning views.
In addition, the garden has a large tennis court, perfect for sports lovers.
This villa is ideal both as a holiday home and as an investment. Its privileged location and design make it an excellent option for holiday rentals, offering a good return for the owner.
Location
Type of property
Rooms
Bathrooms
Plot area
Property Features
Surface area
Transaction
Work category
Condition
Toilet
Washing machine
Parking
Garage
Courtyard
Utility room/area
Balcony
Terrace
Garden
Heating
Swimming pool
Living rooms
Dinning rooms
Number of floors
Study
Gres
Marble
Sea view
Orientation
Double glazing
Security system
Alarm
Equipped kitchen
WiFi
Energy efficiency
E - 181 kWh/m2
E - 47 kg CO2/m2





























































