CASA AMURA
House with privileged views of the Aiguablava bay
Property description
Located on a quiet, south-facing street, this home with its own character stands on a plot of almost 500 m² and is spread over three floors.
On the main floor, we find a spacious living room with a fireplace and access to a large terrace with spectacular sea views. The slightly elevated dining room connects to the separate kitchen, which in turn provides access to a side terrace connected to the front terrace. On this same level is the master suite, equipped with built-in wardrobes, a full bathroom, and direct access to the terrace.
POSSIBILITY OF BUILDING A SWIMMING POOL, AS VISIBLE ON THE AERIAL PHOTO
On the upper floor, there are two additional bedrooms, both with sea views: one en suite and the other double with a separate bathroom.
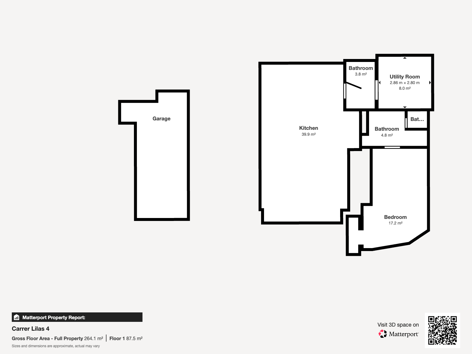
On the ground floor, the house has a garage with capacity for one car and motorcycles. Separately, there is also a suite and a fully equipped studio with a kitchen, living room, and bathroom, perfect for guests, staff, or as a rental.
Additional features:
Reversible air conditioning in the studio.
Oil heating in the main house.
Double-glazed windows.
South-facing.
Prime location: just a few kilometers from the center of Begur and very close to Aiguablava Beach.
A unique property with great potential in one of the most exclusive corners of the Costa Brava.
Location
Type of property
Rooms
Bathrooms
Plot area
Property Features
Surface area
Transaction
Work category
Condition
Toilet
Washing machine
Garage
Terrace
Heating
Air conditioning
Living rooms
Dinning rooms
Number of floors
Study
Gres
Sea view
Clear view
Orientation
Security system
Alarm
Internet
WiFi
Energy efficiency
E - 163 kWh/m2
E - 42 kg CO2/m2




































