CASA AMURA
Casa unifamiliar con vistas privilegiadas a la bahía de Aiguablava
Descripción del inmueble
Situada en una calle tranquila y orientada al sur, esta vivienda con carácter propio se levanta sobre una parcela de casi 500 m² y se distribuye en tres plantas.
En la planta principal encontramos un amplio salón con chimenea y salida a una gran terraza con espectaculares vistas al mar. El comedor, ligeramente elevado, se conecta con la cocina independiente, que a su vez da acceso a una terraza lateral comunicada con la frontal. En este mismo nivel se ubica la suite principal, equipada con armarios empotrados, baño completo y salida directa a la terraza.
POSIBILIDAD DE CONSTRUIR PISCINA TAL Y CÓMO SE VE EN LA FOTO AEREA
En la planta superior se sitúan dos dormitorios adicionales, ambos con vistas al mar: uno en suite y otro doble con baño independiente.
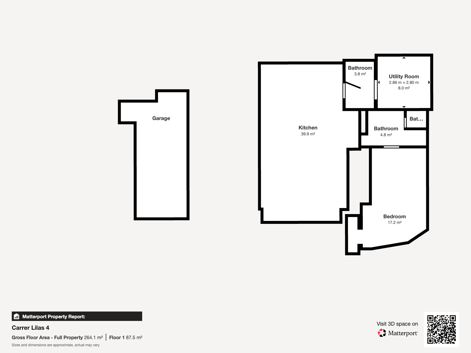
En la planta a nivel de calle la casa dispone de un garaje con capacidad para un coche y motos. De forma independiente, encontramos además una suite y un estudio completamente equipado con cocina, salón y baño, perfecto como alojamiento para invitados, personal de servicio o para destinarlo a alquiler.
Características adicionales:
Aire acondicionado reversible en el estudio.
Calefacción de gasoil en la vivienda principal.
Carpintería con doble acristalamiento.
Orientación sur.
Ubicación privilegiada: a pocos kilómetros del centro de Begur y muy cerca de la playa de Aiguablava.
Una propiedad única, con gran potencial, en uno de los rincones más exclusivos de la Costa Brava.




































