CASA AMURA
Maison avec vue privilégiée sur la baie d'Aiguablava
Description du bien
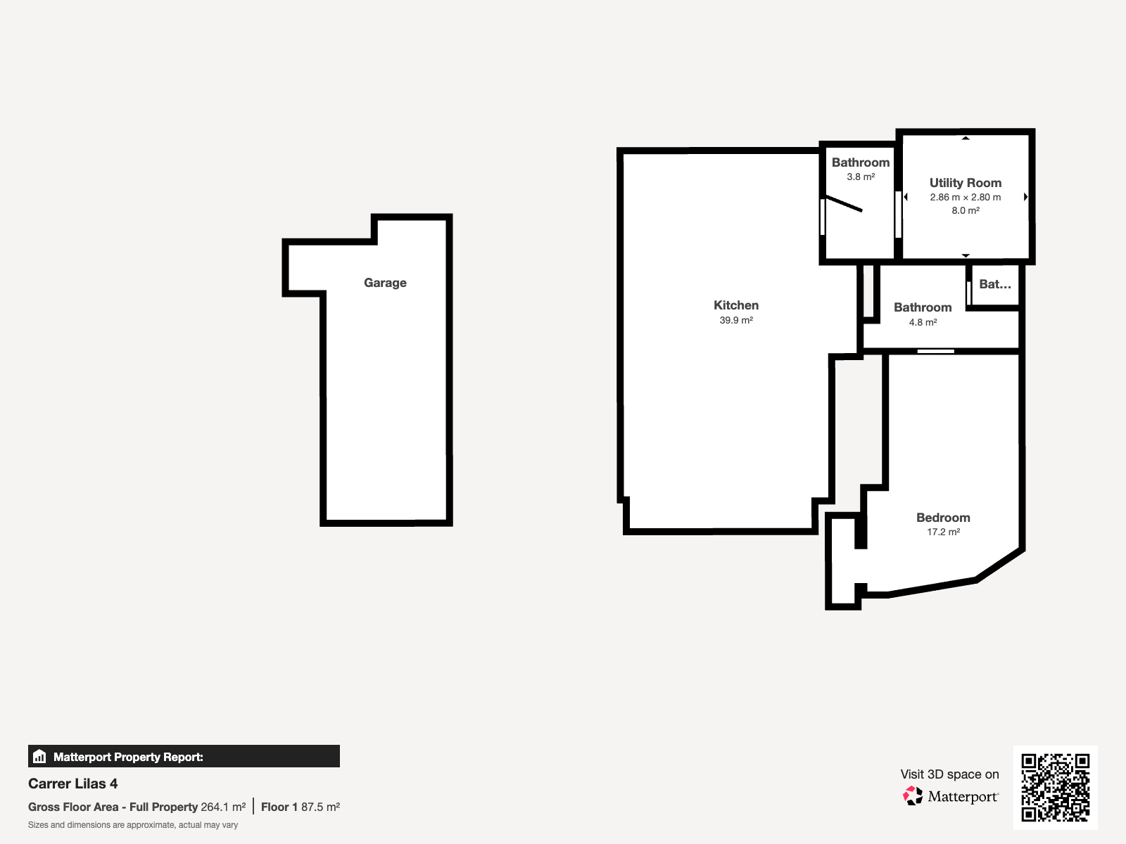
Située dans une rue calme et exposée plein sud, cette maison de caractère se dresse sur un terrain de près de 500 m² et se répartit sur trois étages.
Au rez-de-chaussée, vous trouverez un spacieux salon avec cheminée et accès à une grande terrasse offrant une vue spectaculaire sur la mer. La salle à manger, légèrement surélevée, communique avec la cuisine séparée, qui donne accès à une terrasse latérale communiquant avec la terrasse avant. Au même niveau se trouve la suite parentale, équipée de placards intégrés, d'une salle de bain complète et d'un accès direct à la terrasse.
POSSIBILITÉ DE CONSTRUIRE UNE PISCINE, COMME VISIBLE SUR LA PHOTO AÉRIENNE
À l'étage, deux chambres supplémentaires, toutes deux avec vue sur la mer : l'une avec salle de bain attenante et l'autre double avec salle de bain séparée.
Au rez-de-chaussée, la maison dispose d'un garage pouvant accueillir une voiture et des motos. Indépendamment, une suite et un studio entièrement équipé avec cuisine, salon et salle de bain, idéal pour accueillir des invités, du personnel ou pour la location, sont également disponibles.
Caractéristiques supplémentaires :
Climatisation réversible dans le studio.
Chauffage au fioul dans la maison principale.
Fenêtres à double vitrage.
Orientation sud.
Emplacement privilégié : à quelques kilomètres du centre de Begur et à proximité immédiate de la plage d'Aiguablava.
Une propriété unique avec un fort potentiel dans l'un des coins les plus exclusifs de la Costa Brava.
Emplacement
Type de propriété
Chambres
Salles de bains
Surface du terrain
Caractéristiques de la propriété
Surface
Transaction
Type de construction
État
Toilettes
Buanderie
Garage
Terrasse
Chauffage
Climatisation
Séjours
Salles à manger
Nombre d'étages
Atelier
Grès
Vue sur la mer
Vue dégagée
Orientation
Système de sécurité
Alarme
Internet
Wi-Fi
Certification énergétique
E - 163 kWh/m2
E - 42 kg CO2/m2




































