CASA AMURA
Casa unifamiliar amb vistes privilegiades a la badia d´Aiguablava
Descripció de l'Immoble
Situat en un carrer tranquil i orientat al sud, aquest habitatge amb caràcter propi s'aixeca sobre una parcel·la de gairebé 500 m² i es distribueix en tres plantes.
A la planta principal hi trobem un ampli saló amb xemeneia i sortida a una gran terrassa amb espectaculars vistes al mar. El menjador, lleugerament elevat, es connecta amb la cuina independent, que alhora dóna accés a una terrassa lateral comunicada amb la frontal. En aquest mateix nivell s'ubica la suite principal, equipada amb armaris de paret, bany complet i sortida directa a la terrassa.
POSSIBILITAT DE CONSTRUIR PISCINA TAL I COM ES VEU A LA FOTO AEREA
A la planta superior se situen dos dormitoris addicionals, tots dos amb vistes al mar: un en suite i un altre doble amb bany independent.
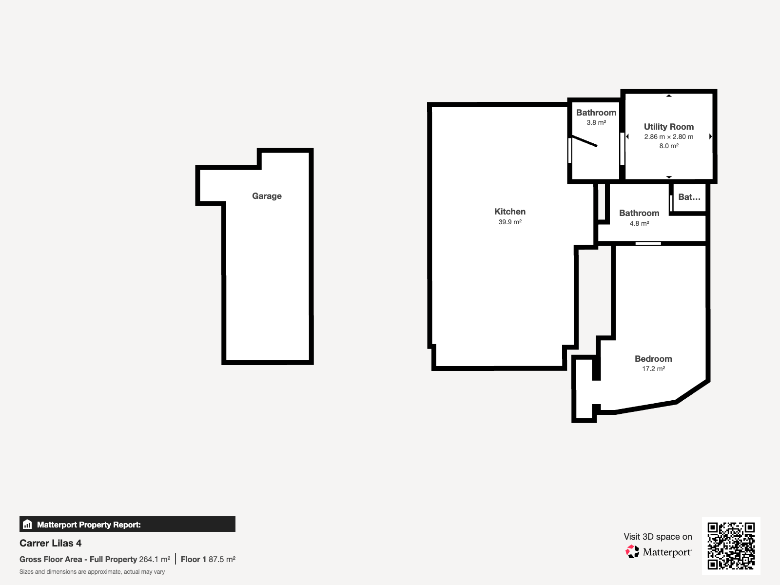
A la planta a nivell de carrer, la casa disposa d'un garatge amb capacitat per a un cotxe i motos. De forma independent, trobem a més una suite i un estudi completament equipat amb cuina, saló i bany, perfecte com a allotjament per a convidats, personal de servei o per destinar-lo a lloguer.
Característiques adicionals:
Aire condicionat reversible a l'estudi.
Calefacció de gasoil a l'habitatge principal.
Fusteria amb doble vidre.
Orientació sud.
Ubicació privilegiada: a pocs quilòmetres del centre de Begur i molt a prop de la platja d´Aiguablava.
Una propietat única, amb un gran potencial, en un dels racons més exclusius de la Costa Brava.




































